姿勢矯正院スタイルケア新装工事
2026.01.19
- クリニック・エステ・整体
BEFORE
AFTER
|
工事名 |
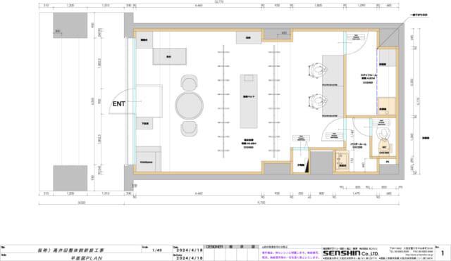
姿勢矯正院スタイルケア新装工事 |
連絡先 |
06-6224-4452 |
|---|---|---|---|
|
住所 |
大阪府東大阪市高井田中1-8-30 アクロシャトー永和103 |
工事期間 |
2024年7月~末まで |
|
営業内容 |
整体院 |
面積 |
約47㎡ |
|
工事金額 |
550万~650万 |
URL |
https://www.stylecare0625.com/ |
|
その他 |
- | ||
事前現地調査~工事前











工事のスタートです。
工事開始~





































工事完成~














工事完了